联系热线 周总:19068503258 周总:13798033179
(示例1)
很明显,互为迎火面的洞口,将受火焰直射和辐射热的影响,必须采用更严格的防火间距措施,《建筑设计防火规范》所述的部分示例中:防火分区之间的迎火面洞口间距是6m,侧火面洞口间距是2m;一些防火分隔的不同区域,迎火面洞口间距是6m,侧火面洞口间距仅需1m。
文末附规范争议:室外疏散楼梯周围2m内的墙面上不应设置门、窗、洞口,这个2m是迎火面间距还是侧火面间距?
一、对于只需要采用防火隔墙分隔的两个区域,处于迎火面的门窗洞口,通常需要保证6m的防火间距,处于侧火面的门窗洞口,通常仅需保证1m的防火间距。
1、示例2的住宅,两个单元之间L≥6m,L1≥1m。
(示例3)
3、示例4的疏散楼梯隔墙,L1≥1m。
(示例4)
注:上述示例中,防火隔墙耐火极限均不大于2小时,如采用3小时的防火隔墙,建议参照后述的防火墙处置。
二、对于需要采用防火墙分隔的两个区域,互为迎火面的门窗洞口,通常需要保证6m的防火间距,互为侧火面的门窗洞口,通常只需要保证2m的防火间距。1、示例5的U形建筑,L1≥6m,L≥2m。
(示例5)
2、示例6的回字形和U形建筑,L1和L2均应≥6m。
(示例6)(规范图示)
3、示例7的防火墙,两个门窗洞口之间L≥2m
(示例7)
4、示例8的防火墙,两个门窗洞口正好处于迎火面和侧火面之间,防火间距L折中计算4.0m。
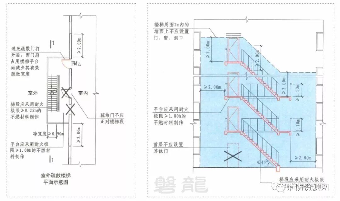
1、不可以。
规范图示(示例9)有很明确的表述,这个楼梯周围2m内的门窗洞口,是指侧火面,洞口不能正对疏散楼梯。
(示例9)(规范图示)
2、错误示例:示例10中,室外楼梯虽然离门窗洞口有2m的距离,但因为与洞口构成迎火面,直接受火焰直射和辐射的影响,安全无法保证。
(示例10)
注:参考资料,火灾发生时,火灾负荷大的大空间场所,可能会产生很大内压,窗口喷出的火苗可能达到2至3米以上(水平方向),在本案例中,疏散楼梯甚至可能直接被火焰覆盖。

扫一扫·免费设计·咨询
技术支持:搜浪网络